Газовые горелки
И под конец дадим чертежи нескольких горелок для газовых горнов. Для художественной ковки они вполне подойдут, а, что ни говори, из кузнечных работ она самая востребованная. Все эти горелки – инжекционные прямоточные. Куда более эффективные и универсальные вихревые слишком сложны для самостоятельного изготовления.
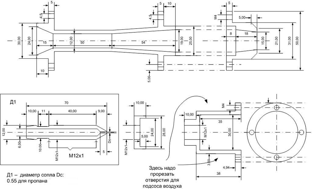
Первая, на рис., самая сложная. Чтобы ее сделать, нужно быть токарем-фрезеровщиком не ниже 5 реального разряда. Зато работает на любом газе (кроме ацетилена, см. ниже!), бензовоздушной смеси и дает очень мощный наддув: может продуть и большой стационарный горн, описанный выше.

чертежи газовых горелок для кузнечного горна
Следующая (см. рис.) попроще и содержит меньше деталей, хотя и здесь нужно точно точить пологие конусы. Дует тоже отлично, но работает только на пропане. Под бутан сопло требуется совсем узкое, да бутан и применяется мало.

Обтачивать вчистую внешнюю поверхность инжектора Д1 и сверлить сопло нужно в один установ. Сопло сверлится твердосплавным сверлом и проходится вчистую разверткой. Это и есть главный недостаток конструкции: требуется мелкий точный инструмент, не везде и не всегда доступный.
Ниже на рис. две горелки попроще. Слева – точеная универсальная под бытовой газ или пропан. Продуть может максимум небольшой передвижной горн, но выточить детали под силу токарю-середняку. Нужно только владеть технологией посадки деталей в горячий натяг. Которая, впрочем, не сложна.

Справа – горелка-самоделка. Большинство деталей, включая ниппель – от велосипеда. Из токарки требуется только обточить в размер самую малую звездочку от велосипедной КПП. Эта горелка всеядна: пропан, бутан, бытовой газовый коктейль, бензовоздух. Но греть ею можно только малые кирпичные замкнутые горны, показанные в начале.
Кузнечная печь своими руками

Схема стационарного горна закрытого типа. Поговорим о том, как сделать печь для ковки самостоятельно, а если нет времени или желания, можете заказать на специализированных производствах. Существует 2 типа печей: закрытый и открытый.
Закрытый тип печки оснащен камерой специального назначения, она предназначена для предварительного разогрева заготовки из металла. Этот тип является самым экономичным, так как его использование требует минимальных затрат электроэнергии.
Однако есть ограничения для размеров заготовки, будут подходить только те, которые совпадают с размерами камеры для разогрева. Одним из лучших горнов для ковки закрытого типа является тот, для которого используется в качестве горючего газ.
Открытый тип принято разогревать при помощи твердого топлива, его засыпают сверху на решетку, а внизу будет происходить подача воздуха. В данном типе горна заготовку необходимо укладывать на горючее. При помощи такого типа печки можно выполнять ковку на достаточно больших заготовках, ограничений в размерах нет.
Основная часть печки — это стол, на верхней его части расположен сам очаг и необходимые заготовки. Высоту печи желательно делать соответственно росту кузнеца, стол же будет колебаться в пределах нормы от 700 до 800 мм. Поверхность может быть любого желаемого вам размера, но принято ее делать размером 80х80 см либо 100х150 см.
Для ковки больших заготовок из металла достаточно увеличить размеры стола, можно изготовить специальную съемную столешницу. Ее изготавливают с помощью уголков и пластин из металла нужного размера. В центре стола размещается гнездо горновое, которое состоит из фурмы, а также из колосниковой решетки, это необходимо для выполнения подачи воздуха.

Схема кузнечного горна: 1 — вытяжная труба; 2 — вытяжной колпак; 3 — коробка горна; 4 — фурма; 5 — трубопровод от вентилятора для дутья.
Как правило, для крышки горна используется специальный кирпич, обладающий огнеупорным свойством, и глина. Все это сделает данную конструкцию достаточно тяжелой. И в такой ситуации есть выход, если вас не устраивает весовая категория данного оборудования.
Можно сделать печку из металла, она будет иметь в наличии специальную крышку из листа 4 мм, колосниковую решетку из чугуна. Решетку необходимо разместить по центру печки для ковки металла. Важным атрибутом для данной печки является вытяжка, которая устанавливается непосредственно над ней. Вытяжной короб можно сделать самостоятельно из металла с тонкими стенами.
Ковку металла принято начинать непосредственно с засыпания топлива на колосники. Многие мастера раскладывают свои заготовки прямо на углях, а затем подсыпают еще слой сверху. Внутри угля будет образован маленький свод, поднимется необходимая температура.
Чем щепочница отличается от других видов печей
Специфические размеры этого вида нагревательных приборов требует применения нестандартных видов топлива для работы. В общем-то для того чтобы растопить эту печь не требуется больших усилий, достаточно использовать все что есть под рукой – листья сосновые иголки, мелкие ветви и кору. Но вот после того как будет получен огонь печь потребует действительно особенного вида топлива. Чаще всего для топки этой печи используется щепа или мелкие веточки не больше 4-5 см в длину. Как видно такие миниатюрные дрова для топки в большинстве печей не используются.
Второе отличие от других видов печей, в том числе и от специальных туристических для обогрева палатки заключается в том, что конструкция не предусматривает дымоход. Это практически исключает ее использование с дровяным топливом в качестве печи для закрытых помещений.
Третий момент заключается в том, что большинство моделей не имеют зольника, из-за чего время горения здесь ограничено. Некоторые разборные модели просто ставятся на грунт и используются в основном как металлическое ограждение обычному маленькому костерку. Так что в плане безопасности в помещениях эта печь проигрывает другим конструкциям с закрытой топкой и поддувалом.
С другой стороны, в рыбацком рюкзаке или туристической сумке для щепочницы всегда найдется место. А особенно если взять складывающуюся или разборную конструкцию печки. Она легкая, небольшая и удобная, не то, что туристические печи для палаток с комплектом труб и полноразмерным корпусом объемом почти в четверть кубометра.
Особенности работы с горном
После изготовления кузнечного горна необходимо научиться им пользоваться. Для этого рекомендуется придерживаться таких правил:
Началом работы с устройством заключается в загрузке топлива на колосниковую решетку. Некоторые кузнецы рекомендуют на разогретый слой угля положить рабочую заготовку, а сверху на нее насыпать еще один слой угля. Таким образом удается добиться максимально высокой температуры в камере.
Если в качестве топлива используется древесина, на колосниковую решетку необходимо положить дополнительное кольцо (диаметром 21 см).
Для обеспечения хорошей тяги над самодельным горном необходимо смонтировать специальную вытяжку. Ее также можно выполнить самостоятельно.
Для того чтобы разогреть заготовку до необходимой для ковки температуры, ее нужно держать в средине раскаленного угля
При этом важно не передержать заготовку. Это может ухудшить свойства металла, что осложнит процесс работы с заготовкой или сделает металл очень хрупким.
Для проведения ковки рекомендуется использовать специальный молоток, вес которого не больше 1 кг
В процессе работы глаза необходимо защитить очками. Это поможет предотвратить попадание в глаза раскаленного металла.
Большая металлическая вещь может быть использована в качестве наковальни. Это может быть рельса или кувалда.
Самодельный кузнечный горн имеет существенные преимущества перед приобретенным. Он намного дешевле, проще в использовании и обслуживании.
Строим газовый горн
Прежде, чем начать сооружать газовый кузнечный горн своими руками, нужно определить параметры пода – его площади.
Для этого существует хитрая формула:
N = H × F
N – производительность горна, которая зависит от напряженности H и площади пода F. Высчитано, что оптимальной поддержки необходимой температуры в горне достаточно скорости подачи газа в промежутке от 1-го до 1,5 м/сек.
Схема газовой горелки для горна.
Вам известны площадь вашей мастерской и примерное количество кузнечных деталей в килограммах, которое вы планируете производить. С этими данными вы выводите напряженность пода с максимально допустимой верхней границей в 150 кг/м².
Необходимые материалы, которые нужно иметь, чтобы приступить к работе:
- кирпич огнеупорный типа динас или шамот;
- пластины толщиной не меньше 5-ти мм из жаростойкой стали;
- стальной профиль для стоек, рамы и заслонки горна;
- труба для дымохода и вентиляционного канала из стали;
- шпатлевка для заделки щелей между кирпичами с жаростойкими свойствами;
- листовой металл или дополнительный слой огнеупорных кирпичей для футеровки с внешней стороны;
- горелки от двухконтурных котлов большой мощности;
- вентилятор;
Газовые кузнечные горны тоже могут быть открытыми. С ним все намного проще, достаточно будет устроить колосники с подачей воздуха для большей эффективности нагрева. Вещества сгорания выводятся в таком случае вентилятором из теплостойкого металла.
Опорную раму лучше располагать вплотную к одной из стен вашей мастерской. Выбор стены нужно делать с учетом того, что будет нужен дымоход и вентиляционная труба, так что смежные стенки, если таковые есть, лучше не использовать.
Важнейшим условием является точное соблюдение правил пожарной безопасности, которое заключается в использовании только огнеупорные и жаростойкие материалы. Не помешает проверить, из чего сделаны стены вашей мастерской
С большой осторожностью относимся к разного рода гипсокартонным конструкциям
Стойки и саму раму лучше сваривать из низколегированной стали по чертежам, которые можно скачать в Интернете. Низколегированная сталь прочна, легкая и, самое главное, устойчива к специфической коррозии высокотемпературного режима. Внешняя футеровка должна быть продумана заранее, чтобы в опорной раме сразу проделать отверстия для ее крепления.
Теперь об огнеупорных кирпичах и кладке
Важно купить настоящие сертифицированные кирпичи типа шамот, изготовленные по ГОСТу 390-79. Если вы приобретете кирпич не по стандарту, вы рискуете тем, что обычные кирпичи начнут у вас плавиться уже при температуре 1000°С. Настоящий шамотный кирпич кремового цвета с мелкими порами в малых количествах, они намного тяжелее обычных керамических, вес одного шамотного кирпича больших габаритов достигает 5-ти кг
Самые подходящие марки шамота – ШБ, ША и ШПД
Настоящий шамотный кирпич кремового цвета с мелкими порами в малых количествах, они намного тяжелее обычных керамических, вес одного шамотного кирпича больших габаритов достигает 5-ти кг. Самые подходящие марки шамота – ШБ, ША и ШПД.
Устройство кузнечного горна.
Второй тип огнеупорных кирпичей – динас. Эти кирпичи дороже, зато устойчивее к высоким температурам: они выдерживают режим с уровнем 1800°С. Они светлее шамотных кирпичей из-за высокой доли в своем составе кремниевых солей.
Если у вас есть возможность, лучше выкладывать горн динасовым кирпичом: кузнечные горны из огнеупорного динасового кирпича долговечнее и выдерживают самые жесткие температурные режимы.
Кирпичи укладывать с раствором из огнеупорной глины с добавкой порошка из шамота и динаса в четкой пропорции 60:40. Дымоход и вентилятор по периметру обрабатывать металлическими уголками.
Важнейший финальный этап – просушка всей конструкции. После нее нужно проверить, как работают вентиляторы для горна кузнечного. И только затем можно будет производить тестовое включение.
Виды горелок, применяемых для сжигания газа
С выбором оптимального исполнения горелки горна связаны вопросы величины угара металла во время нагрева под ковку, интенсивность поверхностного окалинообразования, а также суммарное потребление газа. Для горнов закрытого типа требуются горелки короткого пламени, которые обеспечивают быстрое и интенсивное перемешивание горючей смеси. Именно тогда КПД будет максимальным, а удаление продуктов сгорания из рабочей камеры горна – равномерным и эффективным.
Таким образом, газовая горелка должна обеспечивать:
- Наибольший угол наклона готовой газовоздушной смеси при входе в рабочее пространство горна.
- Высокую скорость выхода струи при малой её высоте и большой ширине.
- Безопасность поджига газа.
- Устойчивость процесса горения.
- Нечувствительность к повышенной влажности внутри горна.
- Безопасность при так называемом «обратном ударе», когда внезапное изменение направления тяги может погасить факел, что практически сразу же приведёт к взрыву в горне горючей смеси.
Чертежи газовых горелок

Чертеж газовой горелки

Чертеж горелки для кузнечного горна
![]()
Эскиз для самодельной газовой горелки
Таким образом, для сжигания пропана (из баллона или газопровода) применяются:
- Инжекторные горелки, обеспечивающие самозасасывание газа. При своей простоте они отличаются низкой экономичностью, поскольку допускают регулировку соотношения компонентов для сравнительно небольшого диапазона значений. Относительно горна, изготовленного своими руками, это чаще всего приводит к необходимости работать с недостатком воздуха;
- Горелки тангенциального типа (осеструйные), когда газ течёт вдоль оси, а воздушный поток – по касательной к корпусу смесителя. Смешивание здесь происходит довольно интенсивно, но и потери давления из-за завихрений также велики. Это сказывается на неравномерности количества подаваемого в горн воздуха, причём оно наибольшее там, где происходит контакт нагреваемого металла с подом горна. Соответственно, возрастают угар и образование окалины. Положительное качество тангенциальных горелок – их простота и надёжность;
- Вихревые горелки, где для перемешивания потоков используются направляющие спиральные пластины. В таких вариантах полное смешивание происходит только в устье, поэтому регулирование работой в данном случае – наилучшее, а потери давления практически отсутствуют. Некоторым недостатком считается конструктивная сложность, из-за чего даже при наличии чертежей изготовить вихревую горелку для горна в условиях домашней мастерской очень трудоёмко;
- Комбинированные горелки, которые сочетают в себе тангенциальный и прямоточный подвод. Регулируемость горючей смеси – наилучшая, поскольку изменением количества подаваемого между внутренним и внешним каналами воздуха можно регулировать длину факела в горне и, следовательно, управлять временем нагрева заготовок под ковку. Недостаток таких исполнений – большие габариты, что для малых горнов может оказаться неприемлемым. Также в минус можно поставить техническую сложность изготовления горелки с двойным потоком.
Делаем газовый кузнечный горн своими руками
Для большинства мастерских, работающих с металлом, необходим кузнечный горн. Если вам приходится работать не только с холодной, но и горячей ковкой, то без него никак не обойтись.
Можно все необходимое оборудование просто приобрести, но стоимость кузнечного горна довольно существенная, ценовой диапазон начинается с полсотни тысяч рублей.
А потому в голову любого владельца мастерской приходит рано или поздно мысль сделать кузнечный горн своими руками.

Принцип работы инжекционной горелки.
В традиционной кузне используются горны, работающие либо на древесном, либо каменном угле (коксе), но, помимо этого, есть разновидности, использующие в качестве топлива нефтепродукты или газ.
Мы страна с крупнейшими запасами газа, цена на который довольно низка, поэтому именно газовый горн кузнечный, своими руками сделанный из подручных материалов, с учетом именно ваших предпочтений, станет лучшим вариантом для любого кузнеца.
Сделать кузнечный горн своими руками на газе не только несложно, но даже гораздо проще, чем традиционные угольные варианты.
Эффективность работы на газе очень высокая, а использовать можно не только магистральный природный газ, но и тот, что продается в баллонах.
Преимущества газового горна
Регулировка подачи воздуха.
- Устройство подобного «очага» во многом проще угольных вариантов, хотя бы потому, что в нем не используются колосниковые решетки.
- Регулировать подачу газа, а значит, и температуру горения намного проще, чем в других разновидностях.
- Из-за своего веса такое оборудование можно по праву считать мобильным. Его можно легко транспортировать в нужное место.
- Себестоимость изготовления совсем невелика и не подорвет бюджет мастера.
- Доступность и стоимость газа не сравнимы с другими конкурентами.
Любой мастер, имеющий элементарный опыт работы, сможет построить горн своими руками газовый или угольный, если будет иметь подходящие материалы, инструменты и чертеж будущего оборудования. На рисунке видна схема очень интересного варианта газового горна, но при изготовлении не обязательно его слепо придерживаться, каждый умелец может внести в него свои дополнения или упрощения.
Ведь нет какого-то единого общепринятого стандарта. Если вы выполните основные требования безопасности при монтаже и вас устраивает эффективность горна, то конструктивные особенности совсем не важны.
Меняйте размеры, вид, конструкционные особенности, делайте горн под себя, свои пристрастия, рост, силу.
Даже такое, казалось бы, вечное требование, как основание очага из огнеупорного кирпича, не является неизменной догмой, многие кузнецы обходятся дырявым ведром, обмазанным слоем глины или даже толстым листом жаропрочной стали. Но все же рассмотрим вкратце два основных варианта газового горна.
Открытая модель горна: инструкция
Изготовление кузнечного горна.
Она представляет собой огнеупорное основание в виде поддона, площадки или стола с углублением. На дне выложены кирпичи или иное огнеупорное основание, по бокам стойки из кирпичей или стали, на которых будет крепиться газовая горелка.
Ее необходимо расположить так, чтоб сопло было направлено вниз, в центр огнеупорного поддона. Конструкция примитивная, но эффективная, она даже не нуждается в вытяжном коробе, дым будет рассасываться естественным путем.
Но это если такой очаг установлен на открытом воздухе, под навесом или в хорошо проветриваемом помещении.
Так как форма горна открытая, то нет никаких ограничений на размер обрабатываемой детали, что очень привлекает многих мастеров.
Закрытая модель газового горна
Основное отличие от открытой разновидности в том, что такой горн обличен в корпус, как правило, в виде куба и имеется принудительная вытяжка. Корпус обычно делается из огнеупорных кирпичей с металлической крышкой, переходящей в вытяжку. Размеры закрытых горнов невелики, для домашнего использования он не превышает 80х100см. В передней панели нужно будет вставить дверцу.
В боковой стене предусматривается отверстие для монтирования газовой горелки. Важным условием является установка принудительной вытяжки (с каналом 30х30см), для этого часто используют двигатели от старого пылесоса, печи обогрева автомобиля и т.д.
Газовая горелка
Для корпуса газовой горелки берется труба из «нержавейки» 2 мм толщиной. К нему монтируется труба, состоящая из двух сваренных труб, по одной из них идет газ, по другой — воздух от насоса. Настройка работы горелки требует внимания и навыков.
Печи для плавки руд, концентратов и полупродуктов, а также для рафинирования металлов
Отражательная печь имеет форму горизонтальной камеры шириной 4—10 м, длиной 10—35 м и высотой 2—4 м. Исходная шихта загружается в печь через отверстия в своде или через окна в боковых стенках, а жидкие продукты плавки накапливаются в ванне печи. Топливо подается с головной части, а продукты горения отводятся в конце печи. Жидкие продукты плавки по мере их накопления выпускаются из печи через специальные отверстия, расположенные на уровне ванны.
Шахтная печь состоит из вертикальной шахты шириной 1 — 2 м, длиной 5—15 м и высотой 5—8 м, собранной из водоохлаждаемых коробок (кессонов). Кусковая шихта и топливо загружаются сверху, а воздух подается через фурменные отверстия, расположенные в нижней части печи. Продукты плавки непрерывно выпускаются в отстойники или передние горны.
Электрическая печь для плавки руд и полупродуктов имеет форму рабочего пространства, подобную отражательной печи с несколько меньшими размерами. Через свод проходят 3—6 угольных электродов диаметром 0,6—1,4 м, по которым в рабочее пространство печи подается электроэнергия. Загрузка шихты и выпуск продуктов плавки также аналогичны отражательной печи.
Конвертер представляет горизонтальный цилиндр диаметром 2-4 м и длиной 4—10 м, имеющий поворот вокруг горизонтальной оси. Жидкий штейн и флюсы загружаются в конвертер через горловину, а воздух подается через фурмы прямо в ванну.
Назначение частей горна
Теперь вернемся к списку в начале и посмотрим, что в горне для чего. А тогда уже возьмемся за изготовление горна по образцам, рассмотренным далее или самостоятельно, исходя из имеющихся в наличии материалов и возможностей.
В промышленности на футеровку стола идет преимущественно кварцевый огнеупорный кирпич, он при интенсивной рабочей нагрузке служит десятилетия. Самодельный горн обычно футеруют печным шамотным кирпичом, более дешевым и доступным. При нерегулярном пользовании его тоже хватит на годы.
Топливник с колосниковой решеткой, воздушной камерой с дренажом и подающим патрубком с вентилем образуют сердце горна – фурму. В промышленных образцах применяют сменные фурмы под разные способы нагрева и нагреваемые заготовки. Любителю или мастеру-индивидуалу чаще всего достаточно одной наглухо вмонтированной в стол с цельной перфорированной круглыми отверстиями колосниковой решеткой.
Воздушный дренаж необходим, чтобы точно и оперативно, не отрывая взгляда от заготовки, регулировать дутье. Недогретую деталь проковать не удастся и закалку она не примет; перегретая и пересушенная пойдет рваться под молотом, а в закалочной ванне ее поведет как минимум, а то и треснет. И уж во всяком случае окажется недопустимо хрупкой. Как по виду раскаленной заготовки определить ее готовность для ковки или закалки – разговор особый. Но опытные кузнецы знают, что перепустить лишний воздух в атмосферу нужно успеть за секунды.
Назначение камеры, или шатра, горна совместно с его зонтом и дымоходом – удалить дымовые газы из рабочей зоны. Их при подготовке угольной массы (см. ниже) выделяется предостаточно, и ни один для здоровья не полезен. Тяга в дымоходе нужна хорошая, т.к. переднее (рабочее) окно шатра и проемы для длинномера (трубы, металлопрофили) открыты постоянно.
Что касается закалочной ванны и газовоздушной камеры, то они могут быть, а могут и не быть, это уж по вашему усмотрению. Закалочная ванна обязательно нужна, если вы собираетесь ковать т. наз. дамаск, изделия из булатной стали. Им нужна термоударная закалка, т.е. из горна – мгновенно в ванну.
Газовоздушная камера в промышленности используется:
- Для дополнительной сушки и подогрева воздуха.
- Для очистки дутьевого воздуха от примесей и конденсата.
- Для введения в воздух газообразных легирующих присадок.
В домашних условиях супер-супер спецспавы не получают; проблема конденсата на производстве возникает при дутье от общей сети сжатого воздуха. В маломощном горне воздух достаточно нагревается, проходя через отверстия колосника фурмы, а очистить бытовой газ от серы можно, пропуская его сквозь слой нафталина, как сказано выше. В общем, делайте газовоздушник, не делайте, дело ваше.
Наконец, горнило. Это жаростойкий колпак, расширяющий зону предельно высокой температуры. Его ставят, если в горне плавят в тигле цветные или драгоценные металлы и сплавы (температура плавления золота 1060 градусов, серебра 960, меди 1080, латуни и бронзы 900), цементируют детали в муфеле и т.п. Искать дорогое готовое горнило нет смысла, в домашней кузне его вполне заменит десяток шамотных кирпичей, выкладываемых на сухую по детали. В такой комплектации самодельный горн заменит и дорогостоящую муфельную печь.






























